Продается дом, 107.5 кв.м., /1
| Стоимость | 12 500 000 |
|---|---|
| Комнат в доме | 3 |
| Категория земли | Земли населённых пунктов |
| Тип комнат | раздельные |
| Ремонт | Предчистовая/WhiteBox |
| Водоснабжение avito | Центральное |
| Канализация avito | Септик |
| Газ avito | В доме |
| Тип строения | Дом |
| Площадь, кв.м. | 107.5 |
| Площадь участка, сот | 8 |
| Этажность | 1 |
| Материал стен | Блочный |
| Населенный пункт | посёлок Краснооктябрьский |
|---|
Дом в стиле High Tech 1 этажный из газоблока, снаружи декоративная штукатурка стен в поселке Краснооктябрьском Майкопского района
В строящемся современном коттеджном квартале в отличной локации
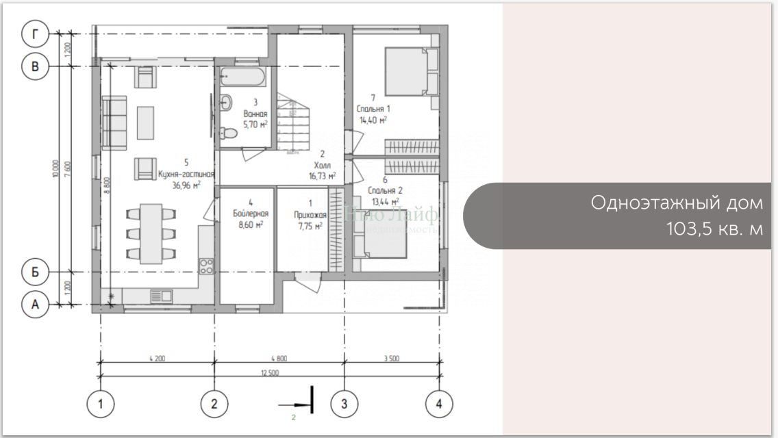
Общая площадь дома 103.5 кв.м
Площадь террасы 15 кв.м
Благоустроенный участок
В доме газовое отопление, разводка электричества по всему дому
В доме будет произведена предчистовая отделка - штукатурка, шпаклевка стен (white box)
Возможна организация за дополнительную плату эксплуатируемой крыши и строительство бассейна на участке по желанию заказчика
В квартале будет построена детская площадка, территория квартала будет закрытая
Идеальное место для тех, кто ценит комфорт, природу и удобную транспортную доступность
Подходит отлично для: проживания, сдачи в аренду, инвестирования. Работает с эскроу-счетами







